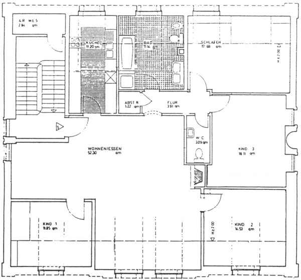
Grundriß

Die Wohnung befindet sich in der obersten Etage auf einer Ebene. Lediglich eine der beiden Abstellkammern befindet sich im großzügigen Treppenhaus auf halber Treppe.

Die Geschoßhöhe beträgt ca. 2,50m. An den Wänden Richtung Norden und Süden beginnt die Dachschräge bei 1,30m. Die Dachgauben (drei zum Norden, vier zum Süden) sind jeweils mehr als einen Meter breit und wie die Zimmerdecken 2,50m hoch. Über der Wohnung befindet sich ein isolierter, aber nicht ausgebauter Dachboden. Aufgrund der sehr dicken Mauern und der guten Isolation, ist die Temperatur rund ums Jahr sehr ausgewogen. In den unteren Stockwerken sind die Decken tief abgehängt und die Geräuschisolation und Trittschalldämmung ist phantastisch: Es dringt auch bei Trampolinspringen kein Laut durch die Etagendecken.

Schlafzimmergroßes BadKinderzimmerStudierzimmerArbeitszimmerKücheWohnen und EssenWohnen und Essenkleines BadWäschekammerbegehbarer SchrankFlurKaminAbstellkammer auf halber Treppe

Die Wohnungstür öffnet direkt in den Wohn/Essbereich, der mit seiner schieren, saalartigen Größe den großzügigen Charakter der Wohnung bestimmt. Wir haben die Küchentür ausgehängt und helle Farben verwandt, um Licht von drei Seiten in diesen Saal fluten zu lassen, in dem alle Hauptaktivitäten der Familie stattfinden.

Zwei ähnlich große Zimmer (im Plan als Kind 1+2 bezeichnet) gehen hier zur Südseite ab und werden von den Eltern als Studierzimmer und Arbeitszimmer genutzt.

Über einen kleinen Flur erreicht man die etwas zurückgezogen Eltern- und Kinderschlafzimmer, sowie ein kleines und ein großes Bad.

Im Elternschlafzimmer haben wir mit einer leichten Einbauwand zur Ostseite hin einen begehbahren Schrank geschaffen und im Kinderschlafzimmer (Kind 3) schaut die Morgensonne durch zwei große und hübsche Bogenfenster und verscheucht die schlechte Laune eines jeden Morgenmuffels.

Im großen Bad haben wir auf die Duschtasse Waschmaschine und Trockner gestellt, um der Hausfrau den Weg in den Waschkeller zu ersparen: Geduscht wird dort in der Wanne. Das kleine Bad verfügt ebenfalls über Dusche und WC.

[5-Zimmer Wohnung] [Beschreibung] [Grundriß] [Bildergalerien] [Finanzielles] [Impressum]